livrea verde milano
appartamento,
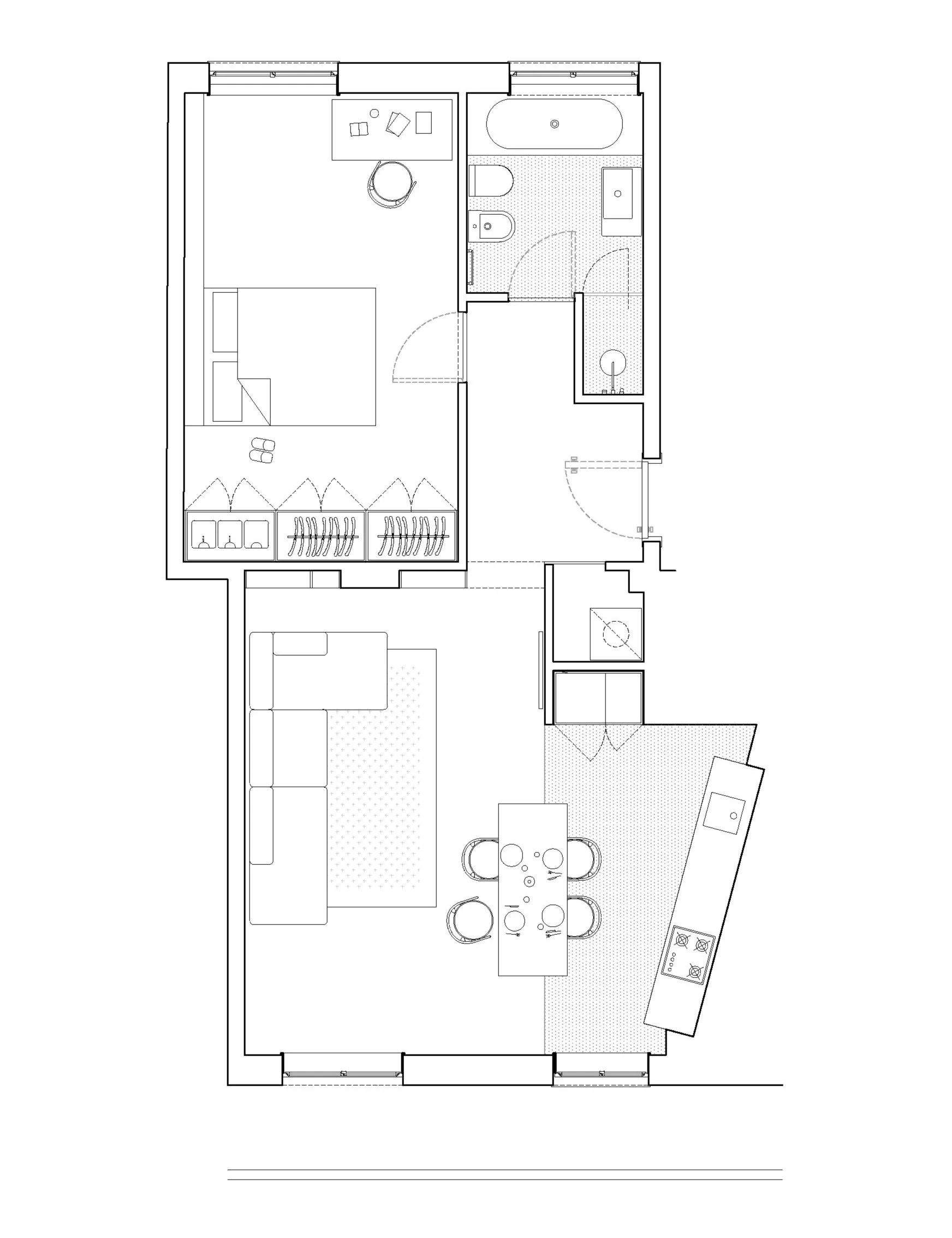
70 mq
Milano, Italy
foto: Simone Furiosi
















"Venne il tram, evanescente come un fantasma, scampanellando lentamente; le cose esistevano appena quel tanto che basta."
(Italo Calvino)
Ve li ricordati i vecchi tram di Milano?
Due toni di verde immersi nella nebbia milanese.
La sensazione di caldo che si prova salendo mentre si è avvolti dagli interni in legno.
Queste le “immagini guida” per il progetto di ristrutturazione di un appartamento di ca. 70 mq.
L’appartamento si trova all’interno di uno dei quartieri storici di Milano: il quartiere dei giornalisti.
Il pavimento originale in Palladiana di marmo degli anni ’50 ne è memoria.
Cromatismi a contrasto che valorizzano i marmi esistenti e mobili in Rovere che rendono gli spazi intimi e accoglienti.